GAUTIER Julien Négociateur
Télécharger la fiche
Coup de coeur

Maison 7 pièce(s) 4 chambre(s) 160 m²

La Forêt-Fouesnant (29940)
573 400 € Référence 1010

A propos de ce bien

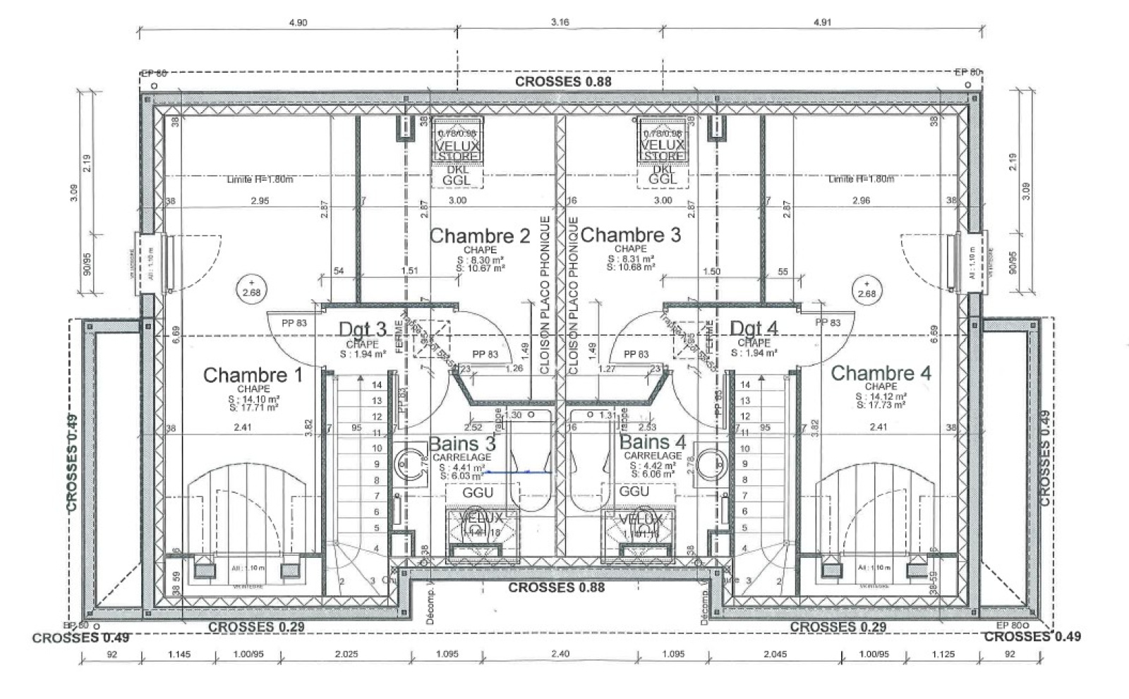
LA FORET FOUESNANT

Au calme d'un petit hameau situé a deux pas du bourg et de la plage, belle MAISON récente (2015) composée de 2 appartements de type 3 duplex et espace commun.

Aménagés avec gout, chaque logement vous propose : une entrée, donnant sur une belle pièce à vivre avec accès terrasse et jardin et une cuisine aménagée et équipée, WC et buanderie en rez-de-chaussée.

2 chambres et salle d'eau à l'étage.

Un espace détente avec son SPA est situé entre les 2 logements.

Places de stationnement pour 4 véhicules.

Aucuns travaux à prévoir et l'absence de charges de copropriété font de cette propriété un investissement locatif avec un excellent rendement ou un pied à terre familial.

Vous aurez également la possibilité de réaliser aisément quelques travaux afin de réunir les 2 logements et en faire une habitation très confortable.

Pour tout renseignement complémentaire sur l’achat de cette maison, vous pouvez joindre l'Agence de la Baie à La Forêt-Fouesnant au 02.98.91.58.47 ou vous rendre sur notre site internet.

Caractéristiques de ce bien

  • Surface 160 m²
  • carrez 160 m²
  • terrain 930 m²
  • 4 chambre(s)
  • construit en 2015
  • cuisine américaine (équipée)
  • Chauffage individuel : radiateur (pompe à chaleur)
  • 4 parking(s)
  • exposition Sud
  • 2 niveau(x)
  • terrasse

Diagnostics énergétiques

Consommation énergétique
A B C D E F G
Emission de gaz à effet de serre
A B C D E F G

Montant estimé des dépenses annuelles d'énergie pour un usage standard est compris entre 540 € et 780 € . Prix moyens des énergies indexés sur les années 2021, 2022 et 2023 (abonnements compris).

Informations financières

Prix de vente honoraires TTC inclus 573 400 €
Prix de vente honoraires TTC exclus 550 000 €
Honoraires TTC à la charge acquéreur 4,25 %
Taxe foncière annuelle 1 100 €

Autour du bien

  • Commerces et santé
  • Loisirs
  • Ecoles
  • Transports
  • Pratique

Calcul des mensualités

* Champs obligatoires